信誉金喜足球网
周一至周六(8:00-18:00)服务热线:
0551-65568226
全国24H服务热线:
18055117184(微信同号)
天思信誉金喜足球网
真人十大半岛导航(官方)网站-网页版web登录入口/手机IOS/Android最新版入口-首页简介
真人十大半岛导航(官方)网站-网页版web登录入口/手机IOS/Android最新版入口-首页新闻
工装日记
工程案例
设计团队
施工团队
装修流程
联系我们
高端办公室装修
/ 设计
合肥办公室装修
合肥办公楼装修
酒店宾馆装修
/ 设计
合肥酒店装修
合肥宾馆装修
合肥民宿装修
教育机构装修
/ 设计
合肥幼儿园装修
合肥早教中心装修
合肥托幼园装修
合肥篮球馆装修
医疗机构装修
/ 设计
合肥医院装修
合肥诊所装修
合肥牙医诊所装修
合肥私人诊所装修
合肥整形医院装修
合肥药房装修
合肥中医馆装修
合肥养老院装修
餐饮空间装修
/设计
合肥餐饮店装修
合肥饭店装修
合肥火锅店装修
合肥咖啡馆装修
合肥蛋糕店装修
合肥茶楼装修
会所空间装修
/设计
合肥会所装修
合肥网咖装修
合肥KTV装修
合肥美容院装修
合肥影楼装修
合肥酒吧装修
工厂厂房装修
/ 设计
合肥厂房装修
合肥无尘车间装修
店面空间装修
/ 设计
合肥店面装修
合肥加盟店装修
合肥连锁店装修
合肥专卖店装修
合肥汽车美容店装修
合肥美发店装修
合肥服装店装修
合肥4s店装修
商业空间装修
/ 设计
合肥商场装修
合肥售楼部装修
合肥样板房装修
合肥展厅装修
家装
/ 设计
合肥别墅装修
咖啡店装修
当前位置:
安徽天思建筑装饰
>
咖啡店装修
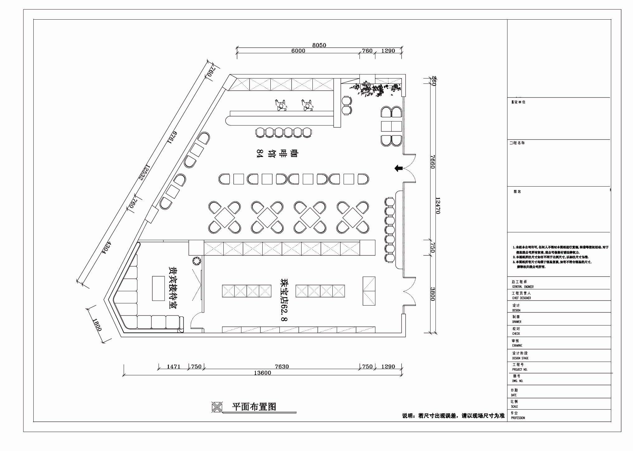
合肥市百货大楼咖啡厅方案
来源:天思装饰 作者: 合肥天思装饰
发布时间:2017-12-24 15:50:14 点击:次
工程名称:
合肥市百货大楼咖啡厅方案
装修类型:
设计+施工
房屋面积:
140平米
效果图:
平面方案图:
信誉金喜足球网相关的文章
上一篇:
返回列表
下一篇:
咖啡店装修墙面材料的选择
合肥工装装修
:
合肥办公室设计
合肥办公楼装修
合肥酒店装修
合肥民宿装修
合肥医院装修
合肥整形医院装修
合肥养老院装修
合肥中医馆装修
合肥厂房装修
合肥车间装修
合肥展厅装修
合肥4s店装修
相关城市:
合肥工装
芜湖工装
马鞍山工装
铜陵工装
池州工装
淮南工装
滁州工装
阜阳工装
蚌埠工装
宿州工装
安庆工装
六安工装
宣城工装
黄山工装
亳州工装
淮北工装
巢湖工装
安徽办公室装修
:
合肥办公室设计
芜湖办公室装修
淮南办公室装修
六安办公室装修
安庆办公室装修
铜陵办公室装修
马鞍山办公室装修
滁州办公室装修
池州办公室装修
黄山办公室装修
宣城办公室装修
阜阳办公室装修
亳州办公室装修
蚌埠办公室装修
淮北办公室装修
宿州办公室装修
巢湖办公室装修
舒城办公室装修
友情链接:
安徽天思建筑装饰设计工程真人十大半岛导航(官方)网站-网页版web登录入口/手机IOS/Android最新版入口-首页
真人十大半岛导航(官方)网站-网页版web登录入口/手机IOS/Android最新版入口-首页地址:合肥市望江西路万科名郡生活广场首座24层
联系电话:0551-65568226 / 18055117184