信誉金喜足球网

安徽天思建筑装饰-合肥工装真人十大半岛导航(官方)网站-网页版web登录入口/手机IOS/Android最新版入口-首页
周一至周六(8:00-18:00)服务热线:

0551-65568226

全国24H服务热线:

18055117184(微信同号)

合肥工装真人十大半岛导航(官方)网站-网页版web登录入口/手机IOS/Android最新版入口-首页-天思建筑装饰
高端办公室装修/ 设计
酒店宾馆装修/ 设计
教育机构装修/ 设计
医疗机构装修/ 设计
餐饮空间装修/设计
会所空间装修/设计
工厂厂房装修/ 设计
店面空间装修/ 设计
商业空间装修/ 设计
家装/ 设计
合肥工厂装修

合肥厂房装修设计-507工业厂房改造

来源:天思装饰 作者: 天思空间装饰
发布时间:2018-09-03 16:18:00 点击:

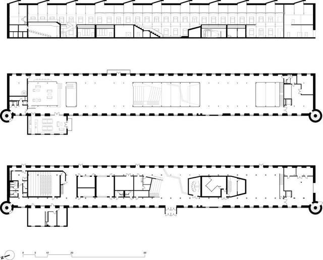
该工作区由 507 厂房改造而来,希望它能变成一个简单、欢乐、温暖、模块化和独特的。实际是赋予了建筑一个低调的外观,使它能完美地融入周边的工业环境。

 

 

更新后的建筑保留了原始的钢结构
 

 

与楼梯扶手集成的滑梯
 

合肥厂房改造设计

 

这一个简单、活泼、温馨并独特的工作场所
 

 

多功能的休息区
 

 

用于交叉设计的空间
 

 

一层的交通空间
 

 

会议室
 

 

总平面图
 

 

剖面和平面图

 
信誉金喜足球网相关的文章