信誉金喜足球网

安徽天思建筑装饰-合肥工装真人十大半岛导航(官方)网站-网页版web登录入口/手机IOS/Android最新版入口-首页
周一至周六(8:00-18:00)服务热线:

0551-65568226

全国24H服务热线:

18055117184(微信同号)

合肥工装真人十大半岛导航(官方)网站-网页版web登录入口/手机IOS/Android最新版入口-首页-天思建筑装饰
高端办公室装修/ 设计
酒店宾馆装修/ 设计
教育机构装修/ 设计
医疗机构装修/ 设计
餐饮空间装修/设计
会所空间装修/设计
工厂厂房装修/ 设计
店面空间装修/ 设计
商业空间装修/ 设计
家装/ 设计
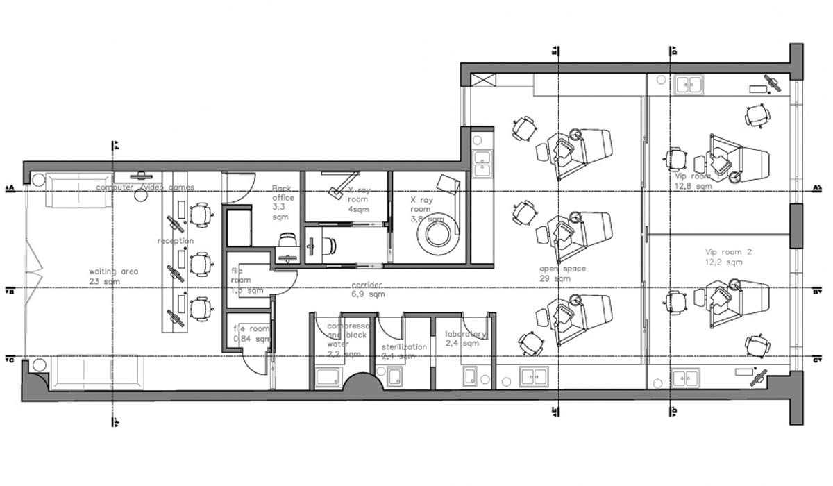
合肥口腔医院装修

合肥口腔医院装修:口腔医院各功能区的设计要

来源:alodkz.cn 作者: 天思装饰
发布时间:2022-01-08 09:45:52 点击:
  私营口腔机构作为偏向服务业的行业,医院的环境和服务在经营中占有很大一部分比重。相比公里医院,人们更喜欢来私营口腔机构的原因无非是不喜欢医院的那种环境和私营的机构服务会好很多。既然口腔医院环境这么重要,那合肥口腔医院装修设计应该怎么做呢?下面小编给大家介绍一下口腔医院各功能区的设计要求:

 
  大厅
 
  1、服务台:主要负责接待、咨询、挂号、叫号、收费。
 
  2、等候区:设有沙发、茶水、鲜花或盆景;供患者阅读的书刊、画报、文摘,以及有关口腔健康教育资料;影视设备可播放口腔健康教育知识,或风光片、喜剧片等。
 
  大厅是口腔医院的“脸面”,是牙科装修中的重中之重,客户对口腔医院的第一印象就在这里了,所以确定风格的时候应该谨慎考虑、多参考设计师的意见和建议。
 
  诊疗室
 
  1、 治疗工作区:综合治疗台,助手操作台,文 案病历办公台、资料柜,洗手盆。
 
  2、 专家咨询接待处。
 
  3、 休息等候区。
 
  诊疗室是口腔医院装修的重要区域,是医护人员诊治患者、操作医疗设备的区域。为了提高诊疗效率,在诊室设计时,应考虑到诊疗方式、营运规模、设备等对设计的影响。在医院空间设计上,使用半开放的隔间区分每个治疗空间,尊重每位患者的隐私,如此就诊与候诊的患者彼此不会互相干扰。同时,诊室和候诊室的隔音必须完善,以免患者相互影响。
 
  X光室
 
  牙科 X 线机和口腔曲面断层 X 线机是口腔医院必不可少的检查诊断设备。国外口腔医院一般将牙片机设在牙科椅旁,但我国的卫生防疫机构不允许。因此,诊室必须按防疫部门规定的防辐射要求,建立摄片室和洗片室。
 
  牙科技工室
 
  牙科技工室为口腔科的附属用房,用于利用牙科有关器材和材料,为患者制造义齿、受损义齿的修复。房间对排风有特殊需求,义齿加工时易产生粉尘、噪音。整个房间的面积需要11平方米左右。在医院装修时牙科技工室墙地面应便于清扫、冲洗,不污染环境即可。
 
  消毒室
 
  1、消毒室的设计标准:污染物与非污染物必须分开;一次性用品使用后应进行初步消毒处理,然后送专门部门回收。
 
  2、器械的消毒设备:应包括清洗机、养护性注油机、安装封口机、高温高压灭菌器等。
 
  3、消毒室的环境:应采光明亮,安装换气、排尘、空气灭菌等装置,室内设有水池和下水道,下水道应与污水处理站接通。
 
  模型间
 
  一般小医院不设技工室,可将修复件送技工加工中心制作。但模型间是必须的,主要灌注石膏模型。房间最好设在一楼,面积大约 6~8 ㎡。应设置带水池的石料台面及台边。下水道应粗而直,直径为 150~200 ㎜,以防石膏堵塞。进入地下排水管之前应设石膏沉淀池,以沉淀石膏。室内应设壁柜,以存放石膏。边台上可放置石膏模型修整机、石膏模型切割机、震荡器等。
 
  医疗污物间
 
  污染物与非污染物必须分开;一次性用品使用后应进行初步消毒处理,然后送专门部门回收。器械的消毒设备应包括清洗机、养护性注油机、安装封口机、高温高压灭菌器等。消毒室的环境:应采光明亮,安装换气、排尘、空气灭菌等装置,室内设有水池和下水道,下水道应与污水处理站接通。
信誉金喜足球网相关的文章