信誉金喜足球网

安徽天思建筑装饰-合肥工装真人十大半岛导航(官方)网站-网页版web登录入口/手机IOS/Android最新版入口-首页
周一至周六(8:00-18:00)服务热线:

0551-65568226

全国24H服务热线:

18055117184(微信同号)

合肥工装真人十大半岛导航(官方)网站-网页版web登录入口/手机IOS/Android最新版入口-首页-天思建筑装饰
高端办公室装修/ 设计
酒店宾馆装修/ 设计
教育机构装修/ 设计
医疗机构装修/ 设计
餐饮空间装修/设计
会所空间装修/设计
工厂厂房装修/ 设计
店面空间装修/ 设计
商业空间装修/ 设计
家装/ 设计
教育培训案例

合肥营区警史馆效果图

来源:admin 作者: 合肥装饰真人十大半岛导航(官方)网站-网页版web登录入口/手机IOS/Android最新版入口-首页
发布时间:2017-12-24 15:37:58 点击:

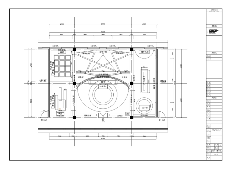
  项目名称:合肥营区警史馆

  设计师:孙守富

  装修面积:260平米

   设计简介:合肥营区警史馆设计沿袭红色主题,展现历史军人的革命奉献精神。蔚蓝的天空作为吊顶,映衬着革命烈士的身躯,显得格外庄严。展厅选用馆藏文物的典型,突出营造革命历史的氛围,体现合肥营区警史馆的鲜明地域特点,以文物为主,借助辅助展品,将革命军人的精神和历史文明呈现给子孙后代,让我们铭记历史,感谢革命先人。

合肥营区警史馆效果图
合肥营区警史馆效果图

合肥营区警史馆效果图
警史馆大厅视角效果图

警史馆展示厅效果图
警史馆展示厅效果图

营区警史馆展厅
营区警史馆展厅

合肥营区警史馆
警史馆过道效果图

警史馆效果图展示
合肥营区警史馆效果图展示

合肥营区警史馆平面图
合肥营区警史馆平面图
信誉金喜足球网相关的文章