信誉金喜足球网

安徽天思建筑装饰-合肥工装真人十大半岛导航(官方)网站-网页版web登录入口/手机IOS/Android最新版入口-首页
周一至周六(8:00-18:00)服务热线:

0551-65568226

全国24H服务热线:

18055117184(微信同号)

合肥工装真人十大半岛导航(官方)网站-网页版web登录入口/手机IOS/Android最新版入口-首页-天思建筑装饰
高端办公室装修/ 设计
酒店宾馆装修/ 设计
教育机构装修/ 设计
医疗机构装修/ 设计
餐饮空间装修/设计
会所空间装修/设计
工厂厂房装修/ 设计
店面空间装修/ 设计
商业空间装修/ 设计
家装/ 设计

合肥网咖装修:美式风格咖啡厅网吧室内空间设计方案(含效果图+实景图)

来源:未知 作者: 天思空间管理
发布时间:2019-11-21 12:38:25 点击:
  文件格式:jpg

  文件大小:97.27MB

  空间划分:成套吧类

  空间类型:网咖

  图纸深度:施工图

  项目位置:安徽

  设计风格:北美风格

  图纸格式:CAD2000

  图纸张数:53张

  包含图片:效果图,实景照片

  内容简介:(53张)

  包含:平面布置图,吊顶平面图 另附:效果图8张;实景图42张  像素:2000*1500
 


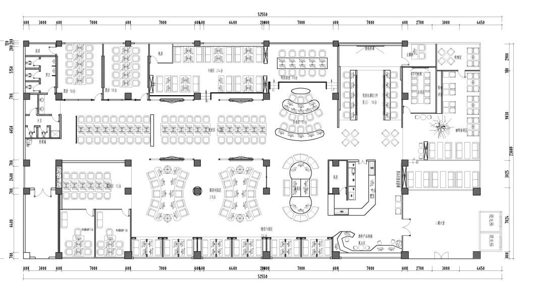
美式风格咖啡厅网吧室内空间设计平面图

美式风格咖啡厅网吧室内空间设计平面图


美式风格咖啡厅网吧室内空间设计效果图


美式风格咖啡厅网吧室内空间设计效果图


美式风格咖啡厅网吧室内空间设计实景图


美式风格咖啡厅网吧室内空间设计缩略图


美式风格咖啡厅网吧室内空间设计缩略图



准备在合肥做网咖的朋友可以参考一下。全部样图请联系我们获取。欢迎大家来我们真人十大半岛导航(官方)网站-网页版web登录入口/手机IOS/Android最新版入口-首页网咖装修栏目做网吧装修设计的参考。直通车:合肥网咖装修
 

栏目地址://alodkz.cn/wk/     原文地址://www.0551tszs.com/42showinfo423.html
信誉金喜足球网相关的文章